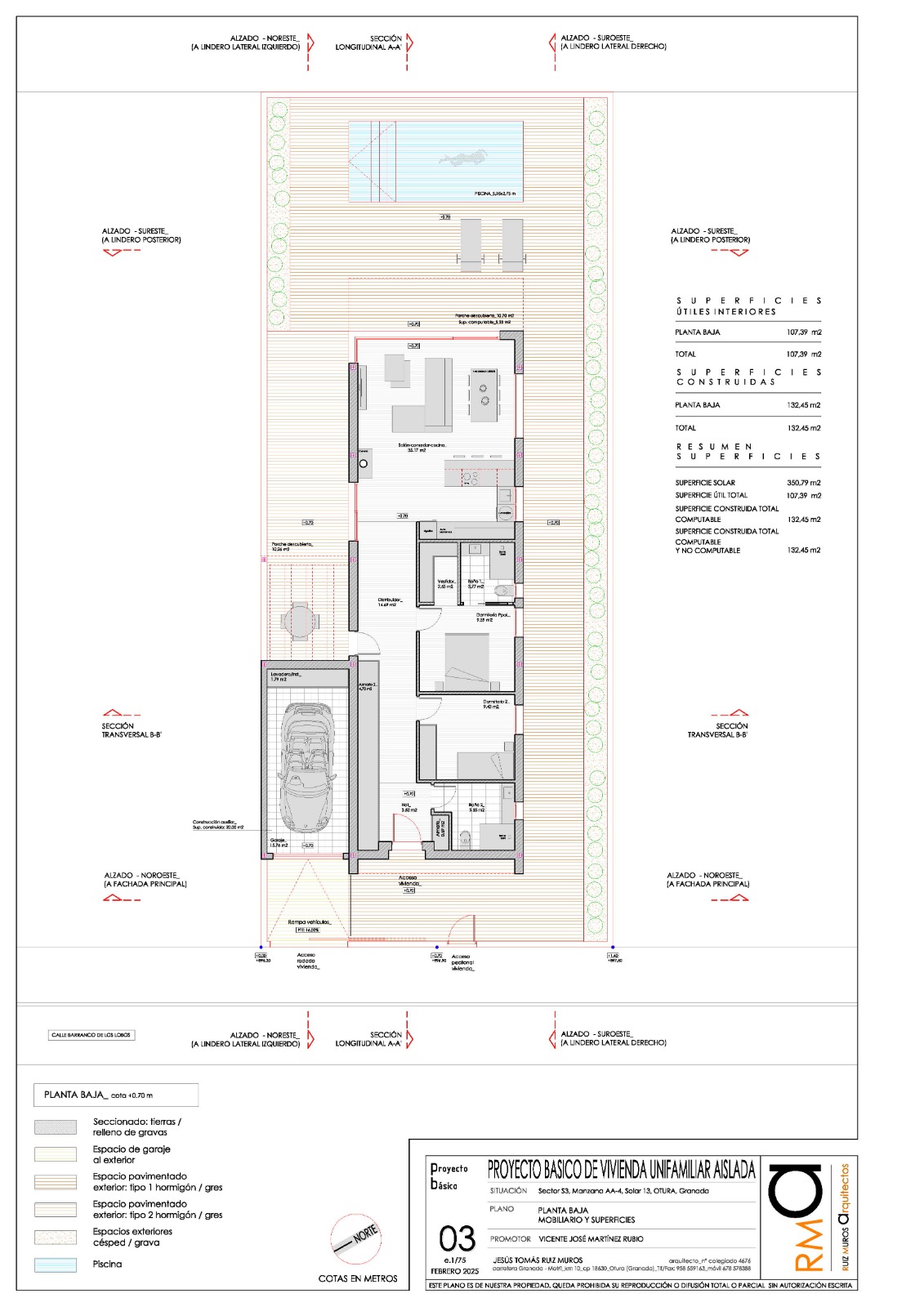
Vivienda unifamiliar aislada en Urb. Santa Clara Golf, Villa de Otura (Granada)

Vivienda unifamiliar aislada en Urb. Santa Clara Golf, Villa de Otura (Granada)

Localidad:

VILLA DE OTURA

Arquitecto proyestista:

Jesús Tomás Ruiz Muros

Fecha proyecto:

Ruiz Muroz Arquitectos
Resumen de privacidad

Esta web utiliza cookies para que podamos ofrecerte la mejor experiencia de usuario posible. La información de las cookies se almacena en tu navegador y realiza funciones tales como reconocerte cuando vuelves a nuestra web o ayudar a nuestro equipo a comprender qué secciones de la web encuentras más interesantes y útiles.