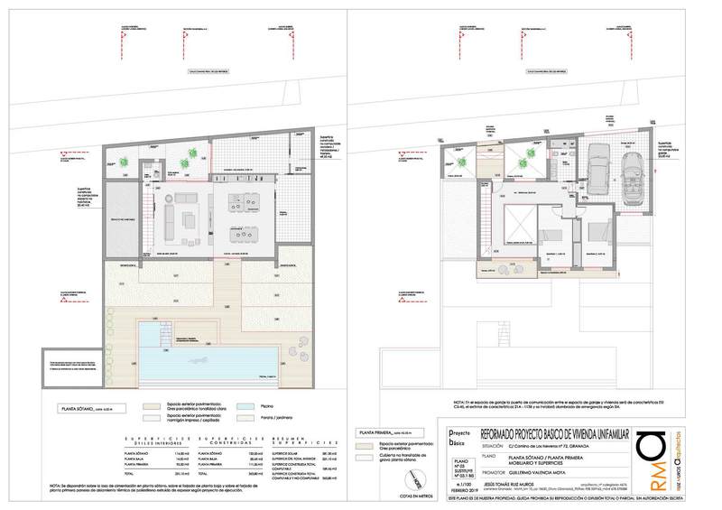
Localidad: GRANADA Arquitecto proyestista: Jesús Tomás Ruiz Muros Fecha proyecto: mayo 2019 nuestros últimos proyectos Vivienda unifamiliar aislada en Calle Matas Verdes 26, Monachil (Granada) VIVIENDA UNIFAMILIAR AISLADA EN P1, EE-1, URB. SANTA CLARA GOLF – VILLA DE OTURA (GRANADA) Vivienda Unifamiliar Aislada en Villa de Otura, Granada Vivienda Unifamiliar Aislada en Villa de Otura, Granada Vivienda Unifamiliar Aislada en Melegís, El Valle, Granada Vivienda Unifamiliar Aislada en Urb. Cañadas del Parque, Granada Vivienda unifamiliar aislada en P7, EE-3, Urb. Santa Clara Golf – Villa de Otura (Granada) Vivienda Unifamiliar Aislada en Mijas, Málaga VIVIENDA UNIFAMILIAR AISLADA EN P3, EE-13, URB. SANTA CLARA GOLF – VILLA DE OTURA (GRANADA) Vivienda Unifamiliar Aislada en Las Gabias, Granada